Stue

Kontakt os

Bestil fremvisning

Grundtvigsvej 4, 3. th., Frederiksberg C

PRIVAT TAG-TEREASSE, PARKERING OG PERFEKT PLANLØSNING

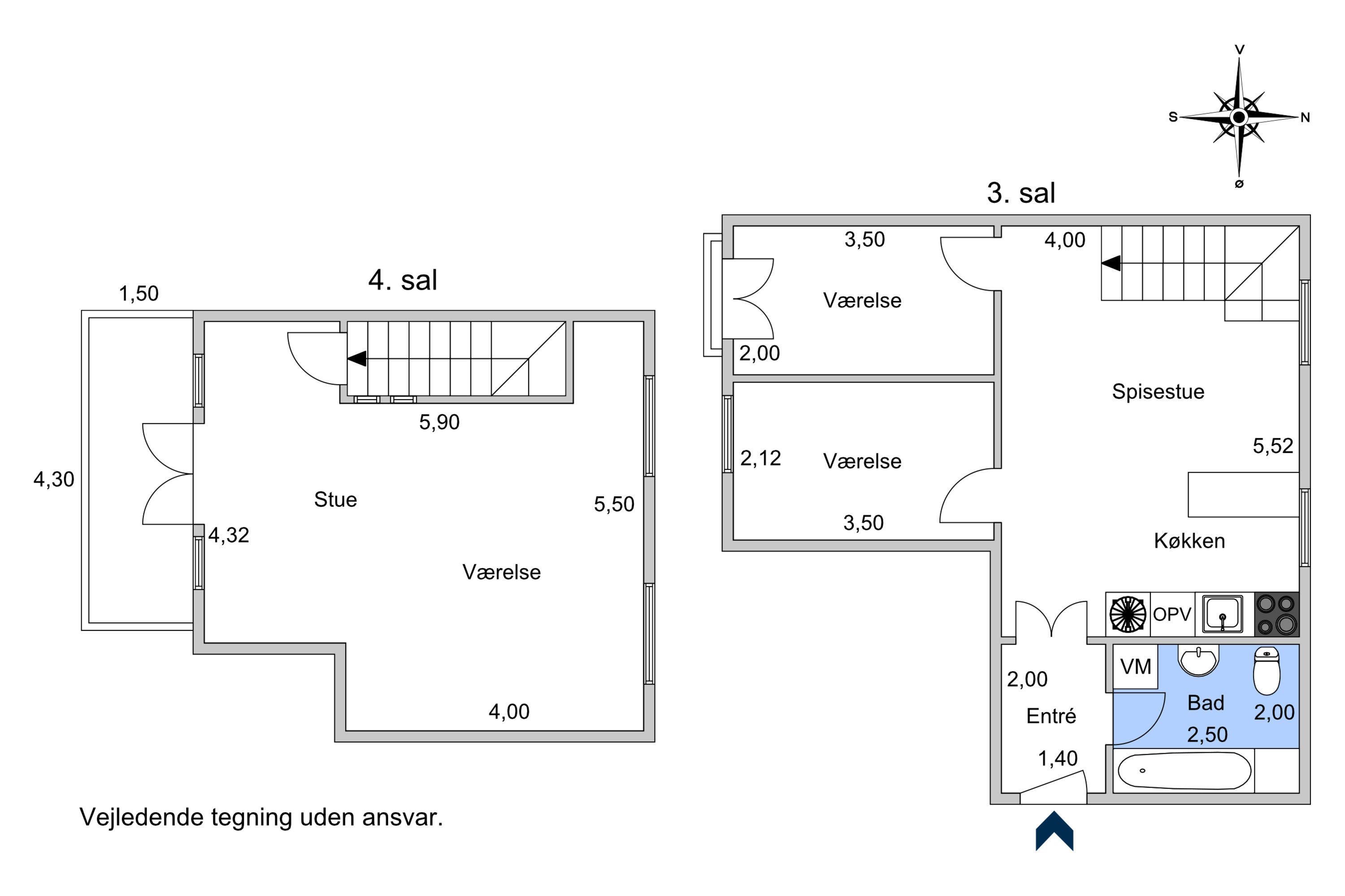
Velkommen til en spændende og velindrettet lejlighed i to plan på attraktive Frederiksberg C. Boligen byder på en god og funktionel planløsning med masser af plads og et skønt lysindfald.
På første plan finder du et stort og indbydende køkkenalrum, som naturligt fungerer som lejlighedens samlingspunkt. Her er god plads til både madlavning, spiseplads og hyggelige stunder med familie og venner. Fra køkkenalrummet er der adgang til to store soveværelser, som begge fremstår rummelige og med gode indretningsmuligheder.
Fra køkkenalrummet fører en trappe op til lejlighedens øverste plan, hvor du finder en stor og lys stue. Herfra er der direkte udgang til en skøn tagterrasse, som giver mulighed for at nyde solen og udsigten over området – et skønt uderum midt i byen.
Lejligheden rummer desuden et stort og funktionelt badeværelse med god plads til hverdagens behov.
Beliggenheden på Frederiksberg C er særdeles attraktiv med kort afstand til hyggelige caféer, specialbutikker, indkøb og grønne områder, samtidig med at offentlig transport er lige i nærheden.

Mulighed for privat parkering i aflukket baggård !

En rummelig og charmerende lejlighed med en spændende planløsning og en dejlig tagterrasse – perfekt til dig, der ønsker god plads midt på Frederiksberg

Grundtvigsvej 4, 3. th., Frederiksberg C

Andre boliger vi har til salg